INVESTIMENTO BALNEAR BARRAGEM DE MONTARGIL
Cliente
Câmara Municipal de Montargil
Investimento
Montalvo/ Tesos: 1 250 000,00 €
Foros do Mocho: 1 040 000,00 €
Interligação e cable park: 890 000,00 € 
PLANTA DA PROPOSTA - CABLE PARK
PLANTA E CORTES DA PROPOSTA - EDIFÍCIO DE MERENDAS
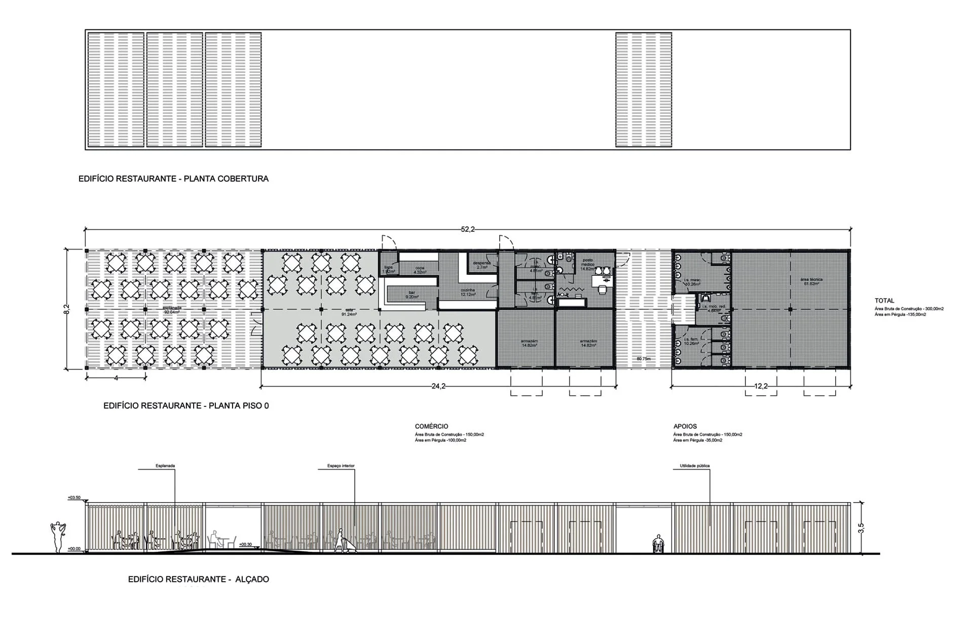
PLANTA E CORTES DA PROPOSTA - RESTAURANTE
PLANTA DA PROPOSTA - FOROS DO MOCHO
PLANTA DA PROPOSTA - FOROS DO MOCHO
 
                         
            
              
            
            
          
               
            
              
            
            
          
               
            
              
            
            
          
               
            
              
            
            
          
              