VILA DO FUTEBOL
Cliente
Associação de Futebol de Lisboa
Investimento
4 000 000,00€
Área
100 000 m²
PLANTA DA PROPOSTA
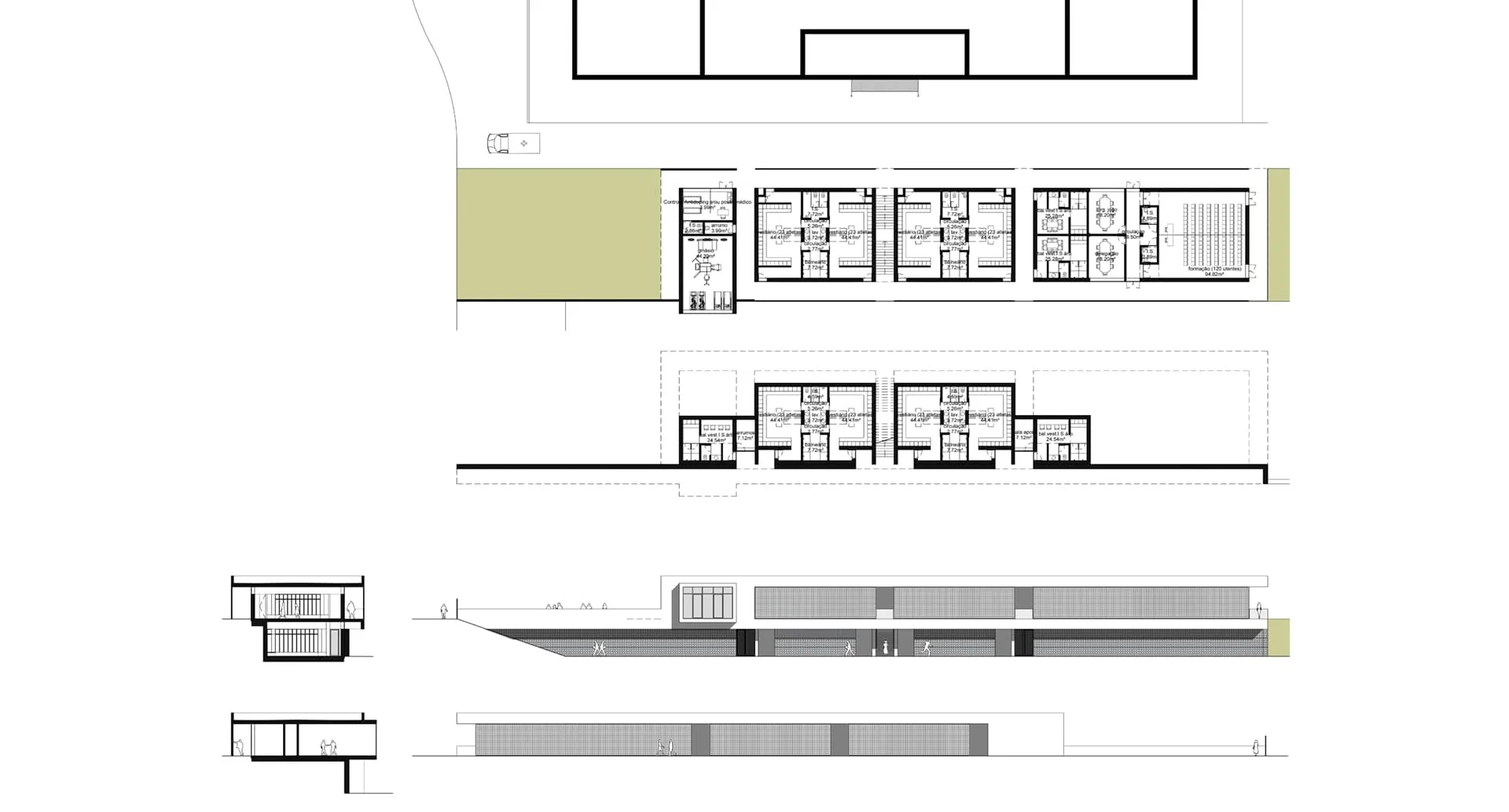
ALÇADOS E PLANTAS DA PROPOSTA
Cliente
Associação de Futebol de Lisboa
Investimento
4 000 000,00€
Área
100 000 m²
 
            
              
            
            
          
              PLANTA DA PROPOSTA
 
            
              
            
            
          
              ALÇADOS E PLANTAS DA PROPOSTA